Rothspitzstraße 41 Whg. 36 | 81476 München / Forstenried

Vermietet / Exklusiver Neubau in Forstenried: Traumhafte 3 Zimmerwohnung mit Balkon

Neubau in Forstenried:
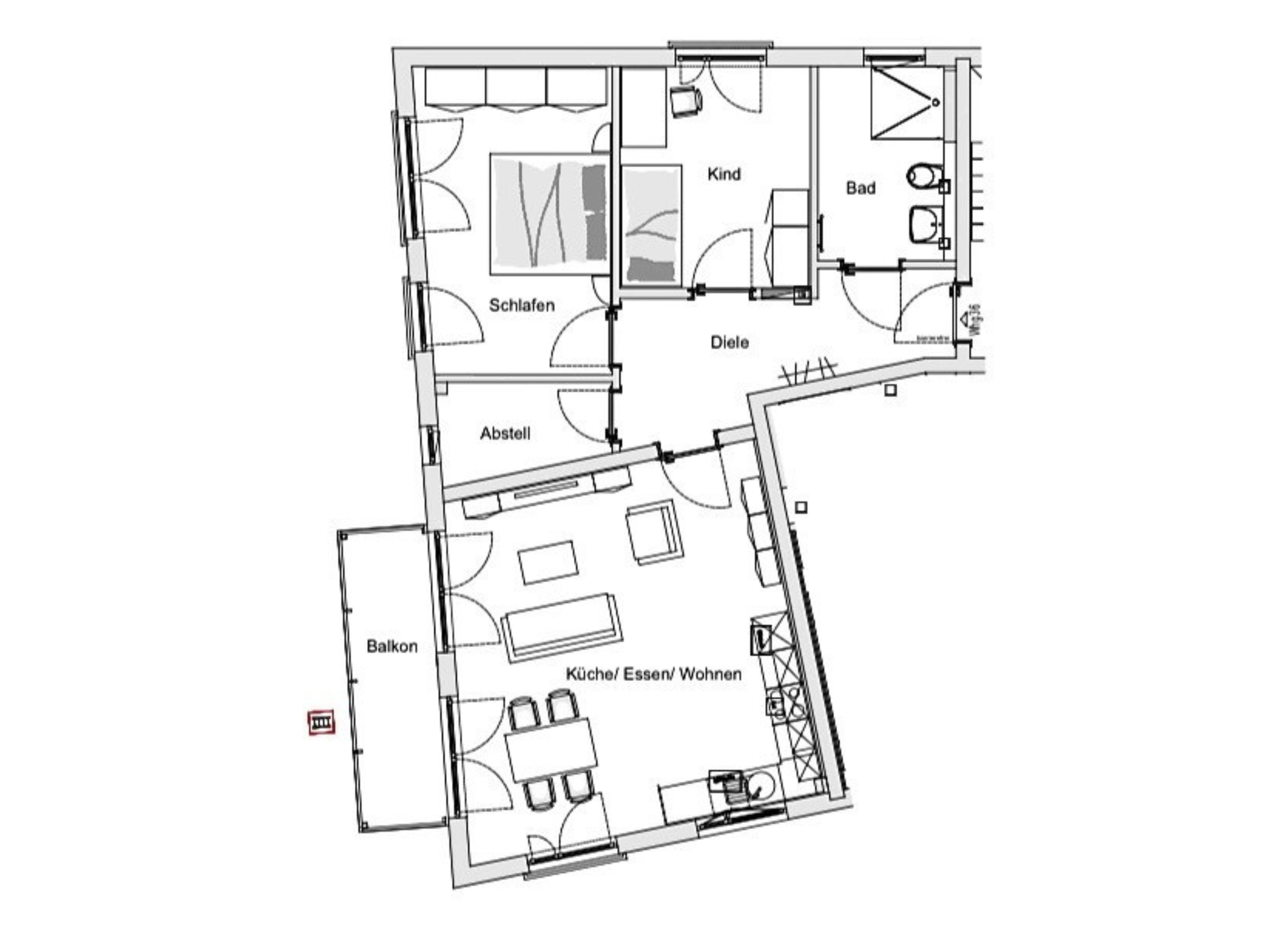
Erstbezug: Exklusive 2,5 Zimmer Erdgeschosswohnung auf 69,11m² Wohnfläche mit durchdachtem Raumkonzept:
Diele, Abstellraum, Gäste-WC, großzügiger, lichtdurchfluteter Wohn- und Essbereich, offene Küche, Schlafzimmer, separates Ankleidezimmer und Badezimmer mit Dusche und Badewanne sowie einer 7,80m² großen teilüberdachten Terrasse.
Modernste Ausstattung sowie hochwertige Materialien lassen keine Wünsche offen.
Beim Mietvertrag handelt es sich um einen unbefristeten Staffelmietvertrag.

Grunddaten
Immo-Nr.:
30
Befeuerung
Gas
Heizungart
Blockheizkraftwerk
Etagenanzahl
3
Etage
Fahrtstuhl
Ja
Kabel Sat TV
Küche
vorhanden
Straße
Rothspitzstraße 41 Whg. 36
PLZ
81476
Ort
München / Forstenried
Objektart
Wohnung
Objekttyp
Erdgeschoss
Nutzungsart
Wohnen
Vermarktungsart
Mieten
Haustiere
nach Vereinbarung
Baujahr
2025
Vermietet
Denkmalgeschützt
Zustand
Erstbezug
Stellplätze
1 Duplex a 60,00€
Flächenaufstellung
Wohnfläche
88
Nutzfläche
Grundstücksfläche
Raumangebot
Anzahl Zimmer
3
Anzahl Schlafzimmer
2
Anzahl Badezimmer
1
Anzahl sep. WC
Balkon
Terrasse
1
Kaufpreis
Kaufpreis
Hausgeld
Außen-Provision
keine
Ausstattung

- moderne, voll ausgestattete Einbauküche
- Fußbodenheizung in allen Räumen
- hochwertiger Lamitanboden und Fliesen aus Feinsteinzeug
- dezentrale Wohnraumlüftung
- Badezimmer und Gäste-WC vollausgestattet mit hochwertigen Einrichtungsgegenständen
- elektrische Rollläden
- großzügige Terrasse
-Personenaufzug
- Kellerraum
- Tiefgaragenstellplatz (Duplex)

Lage

Bestlage in Forstenried:
Die Rothspitzstraße in Forstenried liegt in einer ruhigen, ansprechenden und niveauvollen Wohngegend im Grünen.
Wenige Gehminuten entfernt von Lebensmittelgeschäften, Restaurants, der Grundschule und dem Ortskern Forstenried bietet die Mikrolage der in 2025 neu errichteten Wohnanlage, bestehend aus 5 geschmackvollen Häusern moderner Bauart, alles, was man im täglichen Leben benötigt.
Unweit von Solln und der Isar im Süden und dem Forstenrieder Park im Westen findet man diverse Möglichkeiten für Freizeitaktivitäten.
Trotz der ruhigen Lage verfügt der Standort über eine optimale Verkehrsanbindung: Trambahn-, U-Bahn- und Bushaltestellen und die Auffahrt zur A95 befinden sich in naher Umgebung.

Energieausweis
Baujahr
This is some text inside of a div block.
Zustand
This is some text inside of a div block.
Energieausweis
This is some text inside of a div block.
Endenergieverbrauch
This is some text inside of a div block.
Energieausweis gültig bis
This is some text inside of a div block.
Energieeffizienzklasse
This is some text inside of a div block.
Baujahr lt. Energieausweis
This is some text inside of a div block.
wesentlicher Energieträger
This is some text inside of a div block.
Energieausweis
Energieausweis
liegt zur Besichtigung vor
Energieverbrauch
Energieausweis gültig bis
Baujahr lt. Energieausweis
2025
wesentlicher Energieträger
Gas
Energieeffizienzklasse
keine Angabe

Exposé anfordern

Content Image
Dr. Johannes Hoffmeister
Immobilienmakler
Location Icon

jh@hundhconsulting.com

Sabrina Abele
Immobilienmaklerin

Hinweis zur Provision

Hinweis zur Provision: Für den Nachweis und/oder die Vermittlung dieses Objekts berechnen wir dem Käufer eine Provision in Höhe von 3,57 % inkl. 19 % MwSt., fällig und verdient mit Abschluss eines notariellen Kaufvertrags, berechnet auf den beurkundeten Kaufpreis.

EXPOSÉ anfordern
Gerne übersenden wir Ihnen unser ausführliches Exposé mit einer detaillierten Beschreibung des Objektes samt Planunterlagen per E-Mail und auf Wunsch zusätzlich per Post.
Thank you! Your submission has been received!
Oops! Something went wrong while submitting the form.
EXPOSÉ anfordern
Gerne übersenden wir Ihnen unser ausführliches Exposé mit einer detaillierten Beschreibung des Objektes samt Planunterlagen per E-Mail und auf Wunsch zusätzlich per Post.
Danke für die Anfrage! Wir übersenden Ihnen das Expose per Mail.
Etwas ist schief gelaufen, bitte versuchen sie es erneut!