40237 Düsseldorf
Preis auf Anfrage.
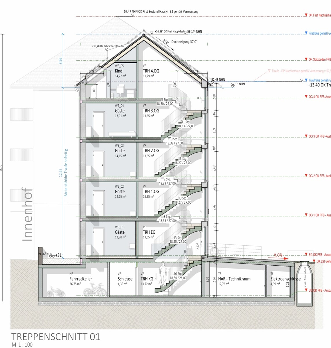
765 qm Grundstück mit einer Bestandsvilla mit 475 qm Wohnfläche und der Baugenehmigung für ein Mehrfamilienhaus mit weiteren 5 ETW’s auf insgesamt 556,25 qm Wohnfläche sowie einer Tiefgarage mit 8 Stellplätzen.
Gesamt ergeben sich somit 1.031,25 qm Wohnfläche aus genehmigtem Neubau und der Villa im Bestand, welche ebenso in 5 ETW’s umgebaut werden kann.
Die im Jahr 1903 erbaute Villa verfügt über 4,00 m hohe Decken, ein repräsentatives Treppenhaus und einen stilvollen Eingangsbereich.
In den letzten Jahren wurden zahlreiche Modernisierungsmaßnahmen umgesetzt, wie die Erneuerung der Gas-Zentralheizung und der Elektrik sowie die Anbringung eines Wärmedämmverbundsystems an der Rückseite des Gebäudes.
Schumannstraße 30 Ecke Uhlandstraße 29 in 40237 Düsseldorf-Zoopark in Bestlage zwischen der Stadtmitte und dem Grafenberg Wald.
Optimale Infrastruktur mit zahlreichen Einkaufsmöglichkeiten sowie einem breiten gastronomischem Angebot.

Hinweis zur Provision
Hinweis zur Provision: Für den Nachweis und/oder die Vermittlung dieses Objekts berechnen wir dem Käufer eine Provision in Höhe von 3,57 % inkl. 19 % MwSt., fällig und verdient mit Abschluss eines notariellen Kaufvertrags, berechnet auf den beurkundeten Kaufpreis.